布袋除尘器
十大足彩平台科技布袋除尘器已经广泛应用在冶金、化工、光纤光电等行业的粉尘治理和物料回收中。处理风量大、清灰效果好、除尘效率高、运行可靠、维护方便。
粉尘粒径最低可到纳米级,在含有HCl、SOx、HF等强腐蚀气氛下也获得长期稳定的应用,且均实现<5mg/Nm3的超低排放要求。
根据粉尘特性、烟气成分等不同情况,对每套除尘器的过滤风速、滤袋及袋笼材质、进气方式、进气气速、均流板设置、防爆、内部防腐、压缩空气处理、清灰工艺、切换工艺等各方面进行定制设计。
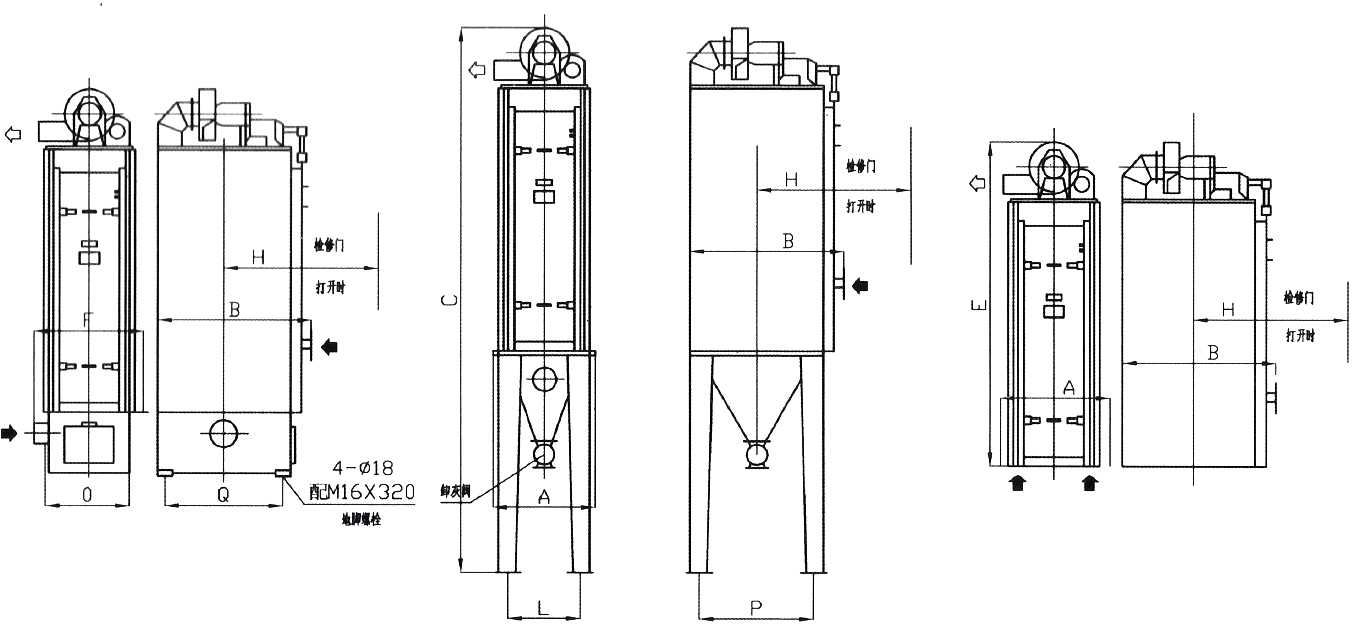
一、单机袋式除尘器SF
单机袋式除尘器,用于料仓仓顶、厂房、各种输送机械等扬尘点。结构简单、安装方便。

SF-I单机系列 SF-II单机系列 SF-III单机系列
1.1 技术性能
项目 | 规格 | 1 | 3 | 5 | 7 | 9 |
处理风量(m3/h) | 最大 | 1380 | 2740 | 5100 | 5500 | 6820 |
额定 | 1040 | 2060 | 3080 | 4100 | 5100 | |
除尘器阻力(Pa) 全压 | 最大 | 1900 | 1900 | 1800 | 1900 | 1850 |
额定 | 1500 | 1600 | 1500 | 1800 | 1750 | |
过滤面积(m2) | 18.6 | 37.2 | 55.7 | 74.3 | 92.9 | |
滤袋组数 | 8 | 16 | 24 | 32 | 40 | |
设备参考重量 (kg) | SF-I | 860 | 1150 | 1450 | 1720 | 1850 |
SF-II | 420 | 720 | 1050 | 1250 | 1360 | |
SF-III | 480 | 760 | 1520 | |||
1.2 主要尺寸
规格 | A | B | C | E | F | G | H | L | O | P | Q |
1 | 820 | 1070 | 4620 | 2520 | 870 | 2990 | 1130 | 636 | 770 | 940 | 890 |
3 | 1430 | 1070 | 5170 | 2800 | 1480 | 3280 | 1130 | 1248 | 1375 | 940 | 890 |
5 | 2036 | 1070 | 5720 | 2800 | 2080 | 3280 | 1130 | 1854 | 1990 | 940 | 890 |
7 | 1430 | 2140 | 6200 | 3250 | 1600 | 1246 | 1354 | ||||
9 | 1732 | 2140 | 6200 | 3250 | 1600 | 1550 | 1854 |
二、单机脉冲袋式除尘器PCF
除尘器采用脉冲喷吹清灰方式,清灰效果好、处理风量大、维修工作量小、运行安全可靠。过滤面积24m2~122m2,处理风量1,500m3/h~9,500m3/h。可根据用具体要求,对过滤风速、过滤风量、占地面积等进行非标设计。
|
|
PCF脉冲单机
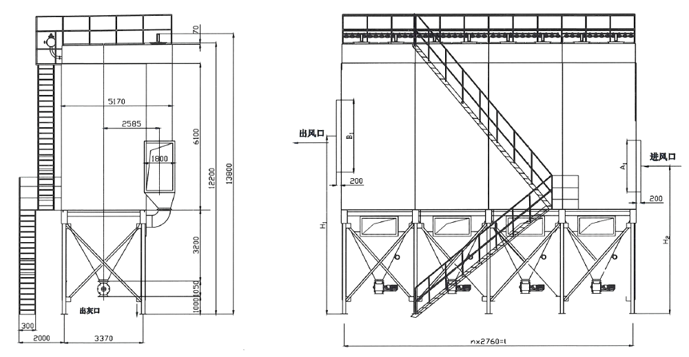
三、低压长袋脉冲除尘器LBF
对于化工、冶金、水泥等行业的大风量除尘系统,采用低压长袋脉冲除尘器,可根据用户要求进行非标设计。可进行单列布置、双列布置。设置进气集合管、进风均流、火花捕集、防爆、滤袋破损在线监测等设施。

LBF型单列布置的外形尺寸
| 外形尺寸 | |||||||
代号 | LBF1855 | LBF2300 | LBF2800 | LBF3700 | LBF4600 | LBF5500 | LBF6500 |
H1 | 7450 | 7700 | 7850 | 8300 | 8700 | 8925 | 8925 |
H2 | 6950 | 7100 | 7250 | 7600 | 7950 | 8250 | 8450 |
n | 4 | 5 | 6 | 8 | 10 | 12 | 14 |
L | 11040 | 13800 | 16560 | 22080 | 27600 | 33120 | 38640 |

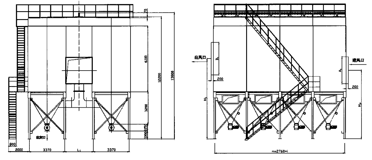
LBF型双列布置的外形尺寸
| 外形尺寸 | |||||||
| 代号 | LCM2 x1850 | LCM2 x2300 | LCM2 x2800 | LCM2 x3700 | LCM2 x4600 | LCM2 x5500 | LCM2 x6500 |
| H₁ | 7750 | 7950 | 8200 | 8750 | 8750 | 8750 | 8750 |
| H₂ | 7150 | 7350 | 7550 | 8000 | 7900 | 7900 | 8250 |
| n | 4 | 5 | 6 | 8 | 10 | 12 | 14 |
| L₁ | 11040 | 13800 | 16560 | 22080 | 27600 | 33120 | 38640 |
| L₂ | 3000 | 3000 | 3000 | 3000 | 3000 | 3000 | 3000 |
LBF 型系列长袋脉冲除尘器性能参数
cq9电子网站
365体育投注
万博max客户端
世界杯压球官方网站
银河娱乐app下载