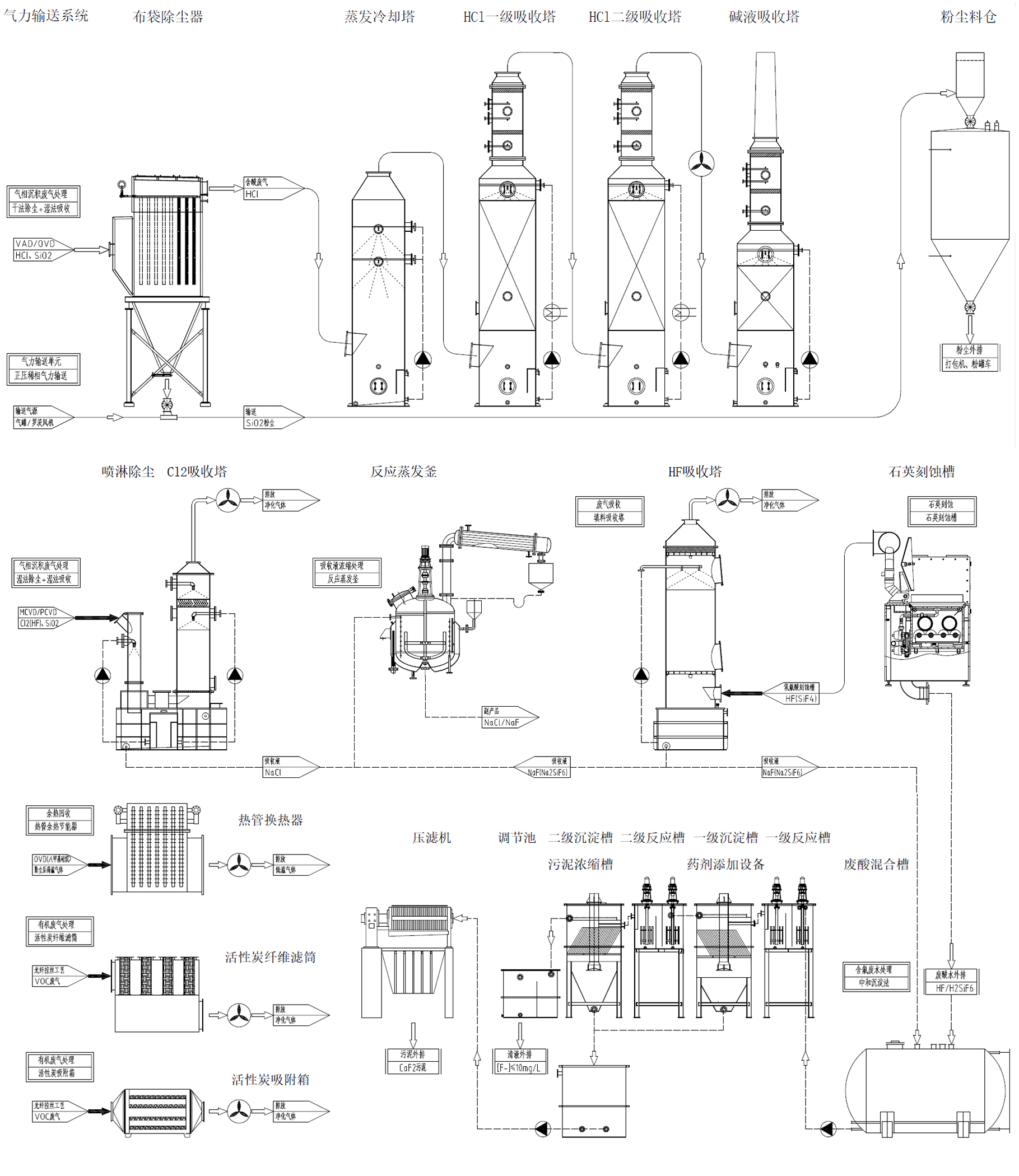
十大足彩平台为光纤、光电等采用气相沉积工艺生产的行业提供环保节能配套工程的整体解决方案。对于其配套的1)粉尘的干法回收和气力输送、2)废气的吸收处理和再利用、3)废酸的处理和再利用,4)刻蚀酸洗槽及化学介质分配系统,5)余热利用等环保节能设备,十大外围足彩网站排行榜科技提供整套的系统设计、制造、建设和运维工作。
十大外围足彩网站排行榜科技气相沉积工艺环保节能综合解决方案

工艺段 | 配套工艺 | 配套设备 | 说明 |
VAD/OVD气相沉积 | 干法除尘+ | 布袋除尘器 | 高温耐腐蚀、超低排放<5mg/m3 |
降温+ | 蒸发降温塔 | ||
盐酸回收+ | HCl吸收塔 | 回收盐酸浓度 >15%wt | |
尾气碱液吸收 | 碱液吸收塔 | HCl排放浓度<5mg/m3 | |
PCVD/MCVD气相沉积 | 湿法除尘+ | 喷雾除尘器 | |
氯气吸收 | 氯气吸收塔 | Cl2排放浓度<5mg/m3 | |
八甲基硅烷气相沉积 | 干法除尘+ | 布袋除尘器 | SS304不锈钢 |
余热回收 | 热管换热器 | >90℃热水或饱和蒸汽 | |
粉尘处理 | 正压稀相气力输送 | 接料流化器 | |
料仓设备 | |||
光纤拉丝 | 有机废气吸附 | 活性炭纤维滤筒 | |
活性炭吸附箱 | |||
预制棒刻蚀 | 氢氟酸刻蚀+ | 刻蚀槽 | 立式、卧式;旋转辊轮 |
化学药剂分配箱 | 氢氟酸等化学药剂添加 | ||
氟化氢吸收+ | HF吸收塔 | 卧式、立式填料塔 | |
含氟废酸处理 | 废酸处理系统 | 中和沉淀法 [F-]排放<10mg/L | |
废水零排放 | 稀盐酸浓缩 | 蒸发浓缩器 | >20%浓盐酸 |
吸收液蒸发 | 多效蒸发、MVR | NaCl晶体 | |
含氟废液 | 反应蒸发系统 | 高纯度NaF晶体副产品 |
太阳城集团官网
bg真人试玩
澳门威尼斯人app
九游体育app
值得信赖的十大棋牌娱乐平台